企業展廳是體現企業實力,企業內涵以及企業文化的一向必不可少的配置。通常具備一定實力的企業,都會建造自己的企業展廳。過去企業展廳配置都很簡單,噴繪,KT板,X展架,玻璃展示柜就能簡單的進行展示。隨著技術的發展,傳統的靜態展示已經逐漸退出舞臺,現在幾乎80%以上的企業展廳已經開始選用多媒體展示技術了;隨著多媒體展示技術的普及,又有了新的問題出現,展廳多媒體如何布局?如何設計?
下面由火米互動為您詳細講解展廳多媒體的設計方案。展廳多媒體在進行設計布局之前,首先要做以下步驟:

項目主題:了解及確定項目主題,圍繞主題展開策劃。確定展示主題,比如生態環保、銀行金融、生物醫藥、歷史文化等,圍繞主題展開想象,確定可能會展示的內容框架
環境分析:分析項目環境及布局,解析項目風格和方向。確定展示的環境,給展項設計明確背景,如古建還是現代廠房、展館建筑結構、施工進度等以及布展面積、層高、布局圖等。
深入剖析項目背景,形成展示脈絡。剖析展示主題,形成展示背景脈絡,如海洋保護可以分解為海洋中的的生物、人類與海洋、海洋的保護等。

內容結構:確定展示的內容結構,圍繞主題展開深入解析展示主題。優先確定展示的內容結構及框架,盡可能的羅列所需要展示的內容。之后再思考去留及分布配置。
功能布局:確定展廳的功能布局,確保展示合理內容完善,重點突出。合理分配展示的功能布局,繪制工具布局圖,使用不同顏色區分,這樣可以很好的縱觀全局,分配重點區域以及次重點區域。
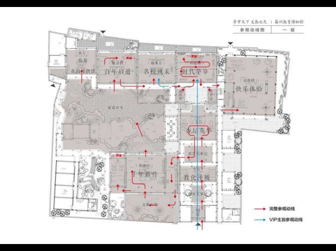
參觀動線:合理規劃參觀動線,做到不走回頭路,簡化參觀流程。合理規劃參觀動線,形成一條脈絡,由古至今,由始自終。做到不走回頭路,且將重要節點安排在形成中部或者中后部,
根據“墨菲定律”在實際工作中會存在很多這樣的情況,列如:
1、展項完成后相關始終不能達到預期。
2、展示結果非常生硬,無法得到甲方的認可。
3、后期項目制作推進困難。
諸如此類的情況都可能是前期策劃過程中產生了一系列的問題,導致蝴蝶效應。那么如何合理規避一些可能產生的問題呢,就需要我們再前期策劃時注意展項的適配性。
所謂展項適配性既各種形式的展項適合展出的內容,及容易出效果的內容。合理的思考展項適配性同時也可以在方案設計階段找出更炫酷的多媒體展示方式加以運用。
沙盤:沙盤是展示一個地區功能分區,整體布局,地理區位的很好載體.
物理沙盤:展示一個地區全景、一般適用于市、區一級展示效果配以模型燈光、追光燈、染色燈、模型升降、影片等方式展示一個地區的格局。如果是企業一級的將做不出太好的光影效果,沙盤就不能作為主體展示。
光影沙盤:一般是素模沙盤配以投影,形成契合的光效,可以更形象的展示功能布局、數據、路網,同時還可以很好的和影片進行互動。缺點是無人使用時并不好看。一般運用于任在規劃中并且有很好的布局規劃的地方。
數字沙盤:純投影沙盤,制作與表現方式與光影沙盤類似,在路網、布局等表現上并不能達到光影沙盤的水準,但在特效鏡頭的表現上要優于光影沙盤 一般運用于有大區位優勢,或是三維建模影象比較漂亮的,或是對全局觀需求大的,例如要講到全國乃至全球范圍等。
光影LED:異形LED是一種特殊的表現形式,主要用作烘托展廳氛圍。
LED樹:一般用作大光影效果的展示,大效果的印象,及大畫面沖擊力給人第一印象,一般用于展廳開場或者收尾,對有明顯主題的展示效果好。
LED燈帶:環繞展廳作為整體空間氛圍的烘托。
AR:AR又稱增強現實,是與現實世界的互動增強。
AR:通過攝像頭互動等方式與現實世界中的一些事物或人產生互動,一般用于趣味展項,或是展品演繹等。
虛擬換衣:虛擬換衣也是增強現實的一種
展廳導覽:通過手機掃描進行圖像分析,在手機上出現本沒有的標識提示或者展品展項介紹
畫畫 互動墻:公司主打展項,是講現實的事物變為虛擬的一種方式。
互動照相:通過場景照相,照形成的照片中出現現實中本不存在的事物。
幻影成像:通過鏡面反射形成虛擬影象。
全息柜:倒金字塔形,一般用于展示展品(分子式、主體建筑等可以多角度展示的)360度旋轉,不宜進行大畫面的展示。
幻象柜:單面展示,一般用于展示產品細節分解,同時可運用于微縮場景的小劇場演繹。
以上是企業展廳選用較多的多媒體互動,更多的多媒體展項請咨詢客服,或撥打:400-8750-730免費獲取完整方案及報價。
本文首發于火米互動(m.wtqj.com.cn),轉載請注明原文地址:http://m.wtqj.com.cn/fszzt/aszzt/a24523.html